The Ministry of Commerce building was complete in 1922. The architect specified the entrance position for the Ministry of Commerce building at the northeast corner and shifted the building's position against the axis of the northeast entrance. The Ministry building has a symmetrical balance plan with a total of three apses. This design emphasizes the central apse as being more outstanding than the side apse due to its larger size and special decoration. The building plan specifies the location of the main entrance at the central apse in continual with the main staircase, which has load-bearing walls at the central apse with no column. Apart from this, the central apse has a long canopy located above the car drop-off area on the ground floor, and at the pinnacle of the building was a parapet wall installed with the Ministry of Commerce building signage. For these reasons, the central apse is obviously different from the side apses. On the backside of the building, it was designed to reduce the apses to only one wite fewer decoration.
      The building structure was made of reinforced concrete that was designed to prevent fire, including the ventilation of heat and the industrial building systems that Tamagno and his team repeatedly applied during the reign of King Rama VI. This was a prefabricated building system that constructed components in advance, then transported and put together on-site to create a structure. Those components are, for example, floor boards, reinforced canopies, reinforced fences, and a cornice--a cast concrete sculpture for decorating the building.
      The Ministry of Commerce building was constructed a hundred years ago. It was firstly used as the office of the Ministry of Commerce, after the adjustment of a bureaucratic structure to the Ministry of Transport. It then changed back to the Ministry of Commerce once again in 1972. In 1999, the Ministry of Commerce moved to a new building at Sanam Bun Nam located at Bangkasor Sub-district, Mueang District, Nonthaburi province. Later in 2005, the Fine Arts Department registered the Ministry of Commerce building as one of Thailand's heritage sites. During 2005-2007, the National Discovery Museum Institute (NDMI) was proceeding with the project by examining the building conditions and working on the archaeological excavation, while it was identifying exhibition contents and designing an exhibition display. On December 23, 2007, Her Royal Highness Princess Maha Chakri Sirindhorn presided over the opening ceremony of the Museum Siam building.
      Mario Tamagno was born in Turin, Italy. He was educated at the Albertina Academy of Fine Arts in Turin, where he graduated in 1895. He then became an instructor at this academy while learning to a higher degree and working with Carlo Ceppi in Turin until 1899. After that, the Government of Siam required support by employing an Italian architect to work in the Department of Public Works and Town to advise on building construction, especially in the area around the Dusit palace. Allegri, the master technician, had contacted Seppi. He advised Tamagno to accept the job offer.
      When Mario Tamagno traveled to Siam in 1900, he entered employment with the Siamese government on a twenty-five-year contract. Firstly, he worked as an assistant architect for three years, was promoted to the chief architect in 1902, and later promoted to a superintending architect. His architectural work during the late reign of King Chulalongkorn (Rama V) was the Makkhawan Rangsan Bridge, Abhisek Dusit Throne Hall, Phan Fa Lilat Bridge, Bang Khun Phrom Palace, Parusakawan Palace, Amphorn Satharn Villa, Ritroongroj Villa, King Rama V ceremony arch celebrating Niwat Phra Nakhon, Suriyanuwat Villa, Phra Mongkhon Bophit Temple, Maen Si Bridge, and Phyathai Palace. Other architectural works of Tamagno during the reign of King Vajiravudh (Rama VI) were the Siam pavilion in the Turin International World’s Fair, Ananta Samakhom throne hall, the temple of Rajathiwas Rajaworavihara, the design of Phra Mongkhon Bophit Temple, and Rajathiwas Temple which were the works that Tamagno created with Prince Naris.
      In 1911, King Vajiravudh (Rama VI) ordered the reorganization of the bureaucraticsystem of the Department of Public Works by combining the construction sector with the sanitary sector under the Ministry of Metropolitan. Tamagno was assigned to this organization ever since. Then there was a new bureaucratic structural system and Tamagno was moved to the architecture department of the Ministry of Interior until he reached the term of the government contract in 1925. During the reign of King Rama VI, the following architectural works were completed: B. Grimm Mall, Suan Sunandha Palace, Chulalongkorn Hospital, Suan Kularb Residential Hall, Chitralada Palace, Hua Lamphong Railway Station, Chitralada Railway Station, Jarunsattra Bridge, Thewarat-Sapharom Throne Hall, The Ministry of Commerce, Neilson Hays Library, Royal Bangkok Sports Club, Nongkran Samosorn Palace, Banthomsin House, Mrigadayavan Palace, Phitthaya Sathian Bridge, Norashing House, and Ming Muang Market.
      When the government contract was completed in 1925, Tamagno was asked by the Ministry of Interior to continue his work to supervise the construction of the Villa Norasing in its last phase until 1926. after that Tamagno returned to Italy and received a retirement income from the Government of Siam. He died in Italy in January 1941.
      At the beginning of the construction of the Ministry of Commerce building, the architect designed a site plan in the area of the old royal palaces of His Royal Highness Prince Sukhasvasti, Prince Adisara Udomdej, and the old royal palaces of His Royal Highness Prince Bodin Paisan Sophon. At the back of the building was the Government Laboratory building, which had been constructed earlier in 1919. The architect specified an entrance position for the Ministry of Commerce building at Wat Phra Chetupon intersection that converges with Sanam Chai road, which is the main street; he placed the building's position against the axis of the land and street to create a magnificent and building perspective. Thus, when you look along the path of Sanam Chai road or Maharat road, you will see this building as an oblique angle view and when you look from the main entrance, you will see the building as a symmetrical balance or straight facade view.
      This building was made of three plaster layers of solid brick masonry with each layer, the building was painted in a light-yellow color. It was a Neoclassical architecture with a rectangular floor plan and a symmetrical building elevation plan, which was a simple “E” shaped plan. This building is designed to have a front porch on each floor, a stairway hall in the middle of the building, a staircase, and a restroom located on the side wings of the building.
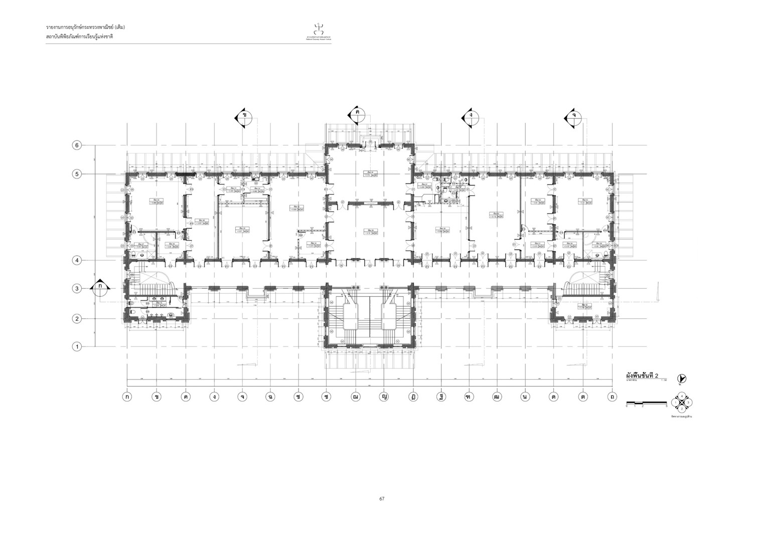
      The building plan is symmetrical and has a total of three apses. The main entrance, located at the central apse: it has the car drop-off area and stairway hall. The central apse was a major vertical-to-horizontal circulation space center. The main staircase was specially designed to be divided into two flights (the imperial staircase) that branch off to the right and left and go around the staircase wall. After that, it returns to the next level of the hallway. Apart from that, the circulation space was a single-load corridor, resulting in the completely distinctive design patterns of the front elevation and rear elevation.
      A floor plan was designed as a modular system, which means each floor is comprised of only two sizes of a room. The room was constructed without a center column and a wide structure that allowed the architect to freely divide the space in each room. This modular system has an impact on the entire layout of the building's doors and window voids. For example, a large room consists of three wide window voids and five long window voids, while a small room consists of two wide window voids and three long window voids. These doors and window voids were all installed in exact positions, allowing the ventilation systems to be fully functional and creating a unified appearance for the buildings' interior and exterior.
      The Ministry of Commerce building was meticulously designed using a modular system,
including controlled door and window voids, building elevation designs, and a building structure
that combined classical architecture with modern materials and building structure all at once.
The designs focused on the contrast between the ground floor and the other floors by installing
a cornice along the entablature on the ground floor and the second floor and constructing a pilaster
that extends beyond two interior stories that combine the second floor with the third floor.
To illustrate, in Neoclassical architecture, there are three-floor building elevation designs that reflect the hierarchy.
The ground floor, or the piano terra, was a place for a servant, a stable, or a commercial space for rent.
The second floor was a living area for the owner of the palace, called the piano nobile.
The third floor was considered the attic or the piano attico, where there was a living area for a servant, a storage room, etc.
      Tamagno “adapted” the front elevation to be different from the standard Neoclassical architecture;
the elevation was intended to reflect the different hierarchy of the three-story building’s users
      The ground floor of this building--used as the officers'
general office and the guest services organization--was designed to create a quiet stifling
atmosphere and plastered with a groove line that resembles the rusticated base.
The doors and window voids on the ground floor were all square-shaped. The walls between
the voids were plastered, creating a groove line on the wall throughout the horizontal line of
the building, which created the feeling of hardiness and stability.
      On the second floor were the minister’s and directors' offices.
The room was designed with arched windows and decorated on the windowsill with a security bar
with a baluster. This design brings about the vista of the second floor as the main floor of this building.
      The third floor was an executive's office, especially the position of
advisor of the Ministry of Commerce. The room was designed as a simple square attic window.
      The building's rear elevation and side elevation
The rear of the Ministry of Commerce building was to the southwest,
which was comprised of three-story office space. Due to the elevation
that turned back toward the Government Laboratory building,
this was the only side that the officers could see. The architect designed
the building elevation totally differently from the front elevation.
The front elevation of the building in terms of Neoclassical architecture was to create enormous
and majestic feelings. But the architect has lessened the design of rear elevation,
which has only one central apse. The window voids on the ground floor and
the second floor were simple square shaped with the same dimensions.
The similar design of a block of three windows throughout the third floor were
installed with a cornice along the entablature located between the ground floor and the second floor.
A cornice was installed at the eaves, which continually from the front elevation.
      The side elevation has dimensions of five-width blocks of columns and was designed to continue from two blocks of columns from the front elevation and three blocks of columns from the rear elevation, although there were contrasting components. The front elevation has a pilaster that extends beyond two interior stories. A pilaster has a horizontal fluted on the bottom. Many doors and windows have voids for decorations. On the other hand, the rear elevation has only a horizontal canopy on the window. Together with the specification designs that organized the range, they created the continuity of the entablature. Moreover, this side elevation design pointed out that the architect focused on the sense of a three-dimensional building. Consequently, the architect bended the side elevation and encircled all four building angles because of the diagonal layout of the road. Passengers on the Sanam Chai or Maharat roads can catch a glimpse of a building's corner rather than be confronted with a side elevation view.
      The Ministry of Commerce building demonstrates interior design ideas as well as the building’s exterior lookings. The designs have divided the space building into systematic working spaces that have access to natural light. The room has great ventilation, so there are few interior design elements inside the working space. The entire room’s floors were a tongue and groove joint. The walls were plastered and painted. The doors were teak wood, on the upper part of the doors was an awning shingle wooden panel to ventilate with no decorations. And the precast concrete ceiling that was installed on the precast concrete or wood slat ceiling was a coffered ceiling and tongue and groove which was set to the same construction standard in the building.
      A circulation space is located in the entrance hall, the stairway hall, and the hallway. This circulation space, which was specially designed as the main stair hall, is located at the central apse; it is a square room with a three-story building with window voids on three sides, which bring natural light indoors. The staircase offers a route between the first and third floor. It builds a support structure into the surrounding walls. This gives the impression that the staircase is floating without being supported by any column. The fourth side of a wall was the side that connected to working space and was the most decorated part of the building. It was divided into three blocks of columns; each block had a double-column to support the floor structure. On the middle column was an entrance to a working space, and the columns on either side had a railing decorated with turned stone bars of a window. The architect laid out a different order for each of the double-columns.
      A round Tuscan column style is located on the ground floor to support the building foundation.
      A round Ionic Scamozzi column capital is located on the second floor to support a short beam.
      A square coupled with columns with narrow tapering assembles the upside-down of the Obelisk order. These columns are one of the features of Baroque architecture. This complicated design has reflected variation of the building functions as well as the different heights of each floor.
      The conservation of the Ministry of Commerce building conveys "integrative thinking" as a conceptual framework. It aims to preserve historical values of this building by adapting the building context into new features such as being a museum that shows modern exhibitions. A modern museum and a historic building co-exist together perfectly. The building and its surrounding space are a learning center that connects the building's inner and outer spaces. It is adapted to the exhibition context interpreted into physical form to create visitor's motivation for learning in the space and enjoyment in asking questions. This integrative thinking conceptual framework determines the building conservation guidelines in all aspects in order to produce benefits out of the building limitations and potentialities of the architecture and structure.
      The concept of architectural values focuses on resurrecting the original conditions of the building, which was an office building. It was the first period of Siam that had a reinforced concrete structure building. The building conservation process had explored information and evidence that led to the understanding of original building’s functions in order to revive the original condition. The conservation encourages the audience to appreciate the original condition of the building in many ways: for instance, the preserve of wall color that was left as a small spot in each room; the wooden floor displayed in the exhibition room to show the complex technique of floor construction; the piping construction, the original septic tank and surge tank located at the front of the building. Due to the renovation process that restored original building materials and authentic decorations as much as possible, the architect avoided building extensions and the exhibition design that might affect the historical site as well as respected the primary technique and construction. This conservation is concerned with visitors' acknowledgements of the original building space, so there is no constructing of ceiling or installing durable goods in the position that would conceal the building elements and allow natural light to shine into some of the exhibition rooms.
      The concept of determining space utilization was originally designed to be an office building that could withstand its own weight. However, such design could not bear the weight of a museum with a large number of visitors. Given that, the architect solved such problem by selecting lightweight exhibit objects and durable goods as well as avoiding installing objects in the middle of a room. Although the main staircase was beautiful, it can bear less weight than the secondary staircases at the ends of the building, so the architect defined a suitable walking trail for an exhibition that starts from the secondary staircase on the left wing (Sanam Chai road) and walks to the third floor of the building, then walks down to the second floor by the secondary staircase on the right wing, and uses the main staircase only for walking down to the ground floor.
      The building's mechanical and electrical systems were installed with ventilation and air distribution systems in the original office room, which was part of an exhibition, by installing the water-cooled chiller system along the gap between two layers of brick walls and between the wooden joists on the ground. In this case, there is no need to build a shaft that would interfere the historical site. The architec installed a standing floor Fan Coil Unit (FCU) and cover it because the condensing unit was placed on the fence's rims, away from the building. All the space in the hallways and staircase were not installed with ventilation, so the walking trails for an exhibition were all located in the old working area where each room was connected. Besides, there was a full installation of the electrical system, the communication system, the fire alarm system, and the Closed-Circuit Television system (CCTV) by wiring in the U-shaped, which assembles to the old wiring methods, because of the special structures of the floor and walls in this building. There was no space above the ceiling to hide a wire. The plumbing system for the bathroom located on the side apse must be reinstalled without hiding in the walls and creating symbols to show the lines of the original one. A Fire Hose Cabinet (FHC) is installed so that the fire hose length meets the requirements of the building code. It is located at both stair landings.
      The concept of building conservation techniques.
      Due to the limited funds, the conservation process
was necessary to use the original materials as much as possible. For example, a layer of plaster on a
wall structure, doors and windows, and terrazzo tiles are still intact. If some substituted materials are required to be
created, they must be in appropriate construction and cost saving at once. For instance, to create diamond slate roof
tiling, red color is sprayed; to create tiled hallways around the building, a
patterned paint roller is made-up to imitate pattern of the original tiles. Mostly, these constructions were composed
of components manufactured in Thailand. They can be easily replaced, are good quality products, not
too expensive, and have a low cost of maintenance.
